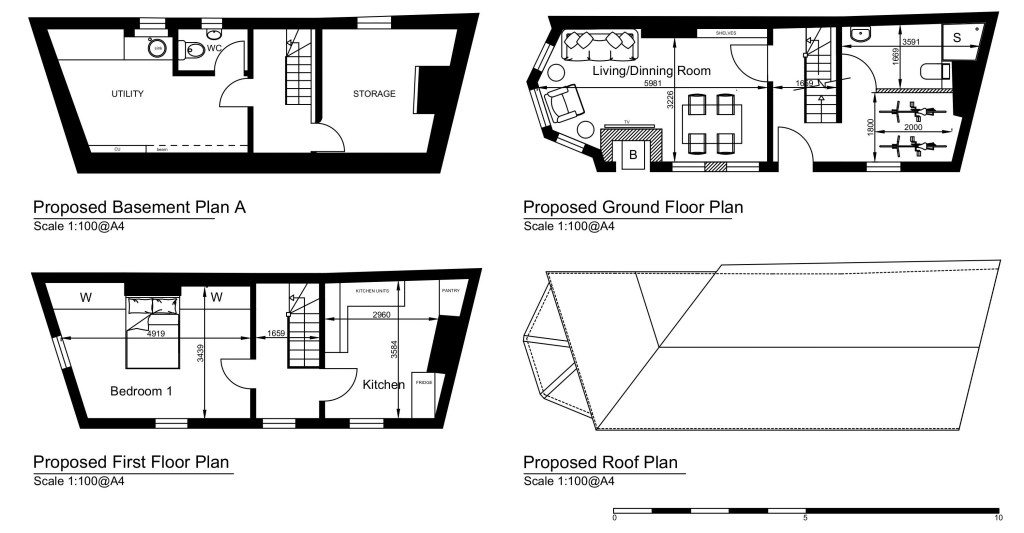
Commercial to residential conversion – In this project I obtained a planning permission for a change of use from commercial to residential. I worked with an existing building that had an unusual layout. I used complex surveying method to measure and draw the geometry.




Residential Extension – I obtained planning permission for this generous house extension from Tunbridge Wells Borough Council. I worked closely with the client to achieve their preferred design that meets their needs.

Single family home for a private client – I designed this energy efficient single family home for a private client. The shape of the building is concise to reduce heat loss and the design allows extra thermal insulation. It has mechanical ventilation with heat recovery and the windows and shading overhangs are positioned in a way that allows solar gain during the cold months of the year but not around noon during summer months. When positioning the windows, I also considered privacy and other functional constrains. Most of the building is clad in timber to further increase its sustainability and relate it to the surrounding coniferous landscape. The shading and external terrace are designed as a concrete frame, enveloping the building, in order to improve the functionality and the aesthetics of the design.

Performing Arts Centre – This is a university project where I explored some of the theories from my dissertation on Spatial Aesthetics in the Context of Evolutionary Psychology and Parametric Design. Psychology and neuroscience have been some of my main interests when growing up and I was delighted to be able to explore it at an academic level. I used parametric tools to create geometry based on aesthetic principles that I was studying as well as all the other structural, functional and contextual constrains.








Refurbishment and interiors – This is a former property of mine which I refurbished on a budget. In the course of employment I worked with some of the most expensive interior finishes and fixtures, however, when refurbishing my own properties I tend to use low budget materials. I believe that materials do not have to be expensive to be high quality and create pleasant interiors but I also enjoy working on high-end interiors and I am open to providing both types of services. When refurbishing this flat I removed some of the non-loadbearing walls surrounding a storage room and dysfunctional large wardrobes located near the entrance in order to enlarge the kitchen. This allowed me to fit in a generous dinning space. I also fully refurbished the bathroom leaving only an original floor mosaic.



